34
$275,000 Sale
Listed 107 days ago
9510 Hwy 97 N Highway Unit# 53
· 2
· 1.0
· 4
· 933
Key Facts
Key facts for 9510 Hwy 97 N Highway Unit# 53
Property Type
Manufactured, Manufactured Home
Parking
Garage: No, 4 parking
MLS #
10351930
Size
933 sqft
Basement
-
Listed on
-
Lot size
-
Tax
-
Days on Market
-
Year Built
1998
Maintenance Fee
$342/mo
Description
Looking for a charming home without the hefty price tag? This 2-bedroom, 1-bathroom retreat offers incredible value with a lifestyle to match. With 938 square feet of smart living space and a large, private yard backing onto tranquil green space, this home is ideal for anyone who values peace, priva...cy, and affordability. Tucked in a friendly walking community, the fully fenced yard is filled with shrubs and flowers, offering a low-maintenance oasis perfect for relaxing, entertaining, or enjoying time outdoors with up to two medium-sized dogs. No rear neighbours mean more nature, less noise, and uninterrupted views from your backyard. And when you're ready to venture out, you're just minutes from the golf course—making it easy to sneak in a quick round or enjoy a peaceful stroll. Whether you're downsizing, investing, or entering the market, this home delivers comfort and convenience at a price that’s hard to beat. (id:10452)
Similar Properties (No results)
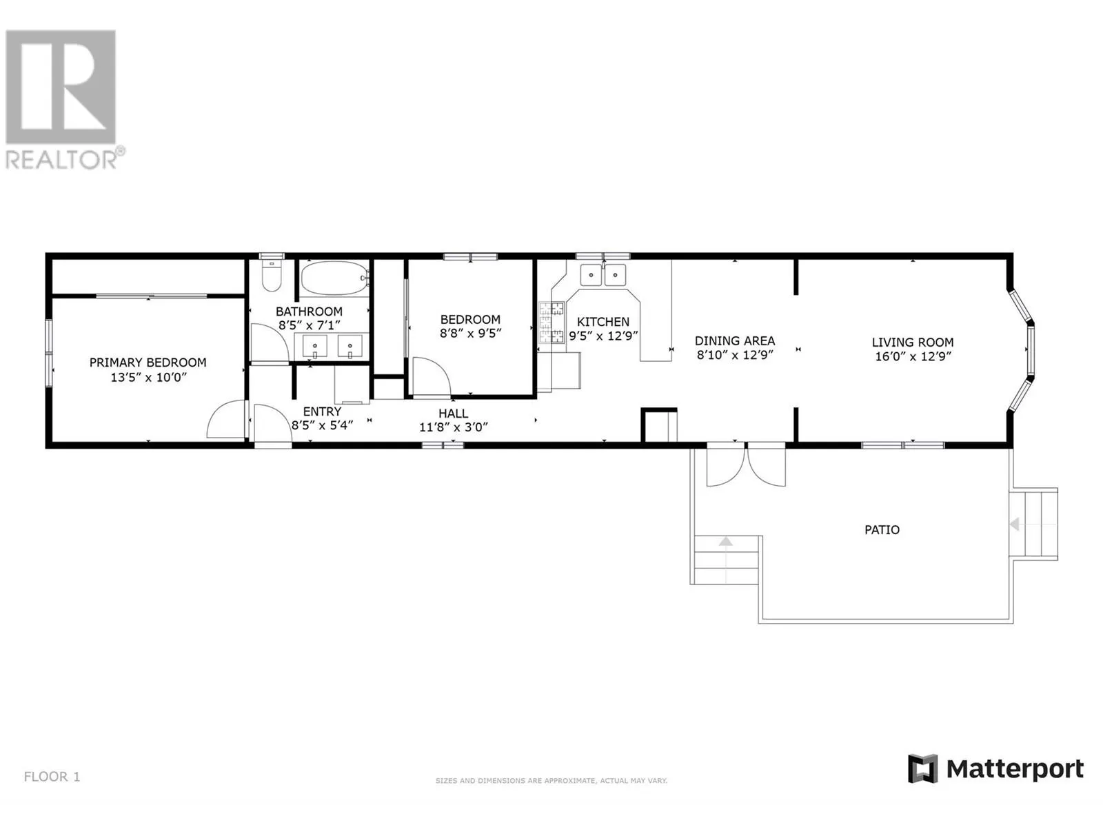
Room Types
4pc Bathroom
-
Dimensions 7'1'' x 8'5''
59.62 sqft
Bedroom
-
Dimensions 9'5'' x 8'8''
81.61 sqft
Dining room
-
Dimensions 12'9'' x 8'10''
112.62 sqft
Listing courtesy of: Vantage West Realty Inc.
This REALTOR.ca listing content is owned and licensed by REALTOR® members of The Canadian Real Estate Association.